SPEC’S OPTICAL
LIGHTING IN HEALTHCARE
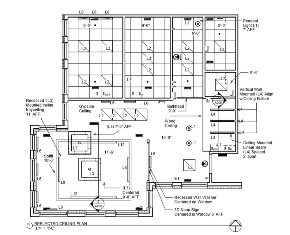
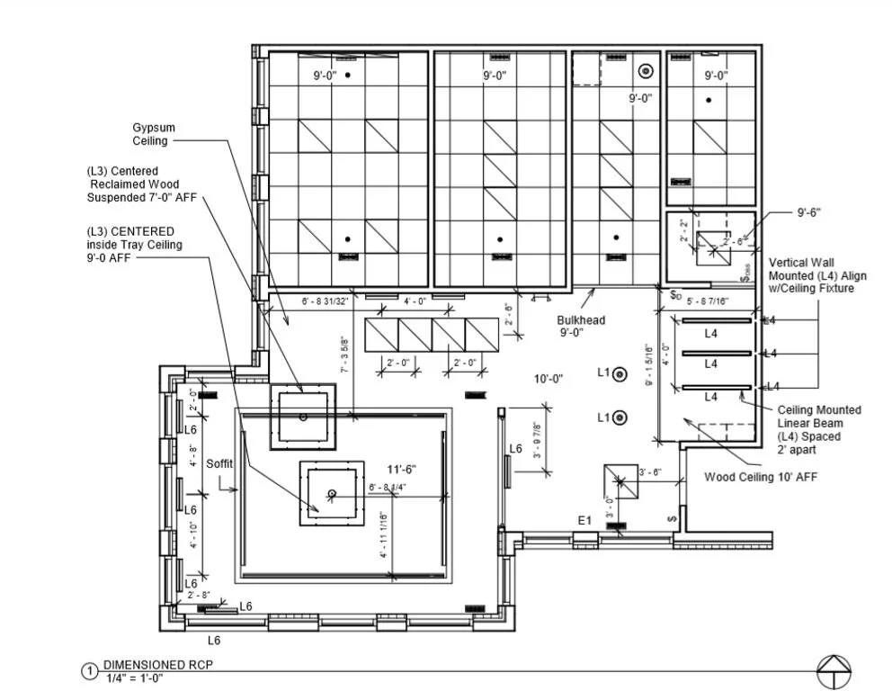
The new Specs Optical office will be fresh and updated with modern and rustic elements throughout. The first thing clients will notice is the custom neon sign hanging in the window separating the reception area from the retail/waiting space.
The contrast of old meets new will be found in reclaimed barn wood attached in a vertical pattern with modern recessed luminaires accenting the straight edge of barn boards. Luminaires hung on the ceiling will repeat the pattern adding unexpected interest. Rustic black pendants will be used above the reception desk as well as above the sink in the kitchenette.
RECEPTION DESK
WAITING SPACE AND RETAIL AREA
RECEPTION DESK
FINALIZED FLOOR PLAN
TRAY CEILING DETAIL SECTION
REFLECTED CEILING PLAN
DIMENSIONED RCP

